하부턱이 없는 방화유리문 > 방화유리 도면집

본문 바로가기
서브 헤더

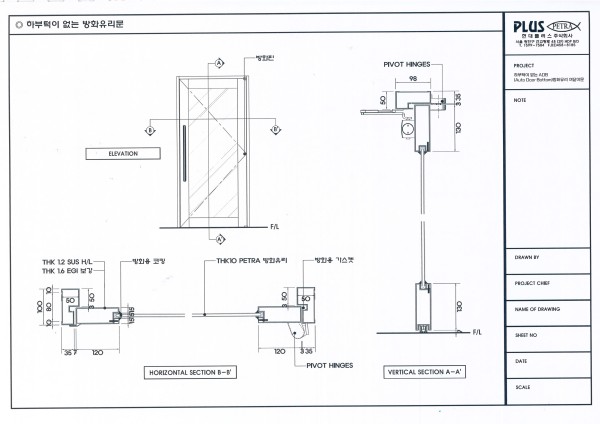
하부턱이 없는 방화유리문

페이지 정보

profile_image
작성자 현대플러스 댓글 0건 조회 106회 작성일 25-09-10 09:53

본문

1939cc915be34d1d828b7ce9351694e8_1757465613_8152.jpg
 

댓글목록

등록된 댓글이 없습니다.


현대플러스(주) 대표 우상진 주소 충청남도 논산시 가야곡면 가야공단길 14-23 사업자 등록번호 308-81-23866

전화 1599-7584 팩스 02-458-8185 개인정보관리책임자 우상진

Copyright © 현대플러스 주식회사 All rights reserved.